History & Culture

Early ideas, brick walls & rabbit dreams

So there you go again

We dream about all sorts of waffle, all the time. We're always imagining daft stuff. When we dream we always try to max it, as we might as well, they’re our dreams & the way we see it, we can always edit them at a later date. That’s the best thing about your dreams, you can make them about anything & as big or small as you want.

It’s when you try to actually put the work in, to realise them in reality that you can sometimes get your wings clipped. But never let that stop you though, as time spent dreaming is never time wasted.

Building Dreams

When we first planned the move to Curtis Mayfield House, we knew we would have a lot of spare space in the building on its upper floors.

We cooked up all kinds of mad notions for potential things we could do up there.

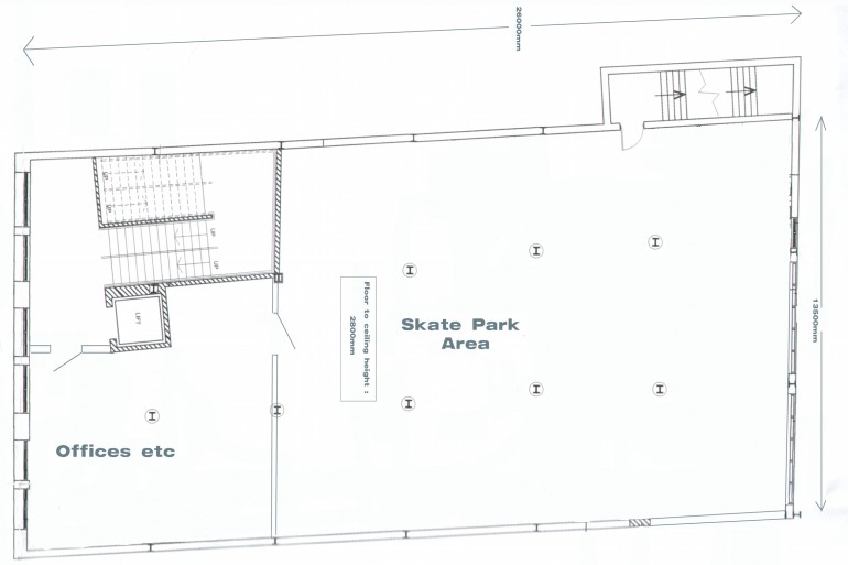
The WHQ Skatepark

The first idea was to put little indoor skatepark in there & initially we were really keen on that plan. But after drilling down into it a bit more, we realised that the metal pillars supporting the building would make it really dodge.

It’s all well & good having a 3000 sq foot room, but add an office & spread 6 roof supporting steel girders around it & the idea of whizzing about on skateboards at 90 miles an hour rapidly becomes a ticket to the RVI. It was too small really, even at that size.

Rough plan we drew up at the time.

Also the way the building is designed, the ceiling heights get gradually lower as you move up the building. That meant that we would have only been able to accommodate it on the ground floor & we needed that for the Club.

So though a tasty dream & one we spent time drilling down on, that one hit a bit of a brick wall.

The Love Hotel

The other idea we pondered, was to put a small, 3 room hotel on one of the floors. We reckoned it would have been handy for visiting DJs & save us a packet on putting them up in hotels all the time.

But then we realised that with a Club downstairs, only really DJs would stay there, as the racket from the Club every night would put everyone else off.

We were still really keen on the idea in principal though, so kicked it around a while to see if there was anyway we could potentially skin it.

Love Hotels are massive, totally accepted & used by couples in Japan.

We came up with a (very) loose idea for a Love Hotel that might work in little chunks, rather than necessarily overnight stays. We thought that if we made it nice enough, people out on dates might come & finish their date there, or people out celebrating anniversaries in town or whatever, might fancy it.

We were doing a bit of dating back then & knew that if it was really plush & available in multiples of hour long chunks, it was the kind of thing we might have been into.

Many are really amazingly done out, all themed, seductive & ideal for dating.

Probably wouldn’t want to stay overnight though but if it was plush enough & cheap enough we'd probably have tried it.

That sounded then & still sounds to us now, like an idea which if handled right, has potential. A bit left field for the UK granted, but similar ideas do work elsewhere on the planet in places like Japan.

We were mad busy however & didn’t get time to drill down on it, so it was never anything more than a daft dream we were kicking about for a bit, prior to running out of money.

Anyway, we’d mentioned this to a few people & months later, some daft journalist got a hold of it & it was stupid time...

They pumped it right up out of absolutely nothing, rattled one of the older Councilors about it & she kicked off saying it sounded like a 'Brothel.'

As if..!

The journalist then cobbled up an article about it, after hustling us for a response. That then led to us basically being called out as a potential bunch of pimps.

WHQ ended up in the local paper, being portrayed in some kinda 'Snoop Dogg's holiday home' stylee.

All for a mad dream idea we'd simply been kicking about a few months prior & the fact we were willing to acknowledge, that some people in Newcastle actually do have sex sometimes.

We didn’t end up doing the hotel in the end, as we ran out of loot fitting out the Club & once it was open we got too busy to care. 

The article in the paper was canny pathetic. A proper, sensationalist, nothing story - here it is...

That toilet paper sure looks a touch crinkly today..?

It was a great lesson in why it’s often best to avoid local media, as they are in very much the same zone as plod.

Some are fine. Some are just ok. But many others are in fact brimming full of choc log.

No, not that one - the warm one, with the sweetcorn in it.

You have no way of knowing which is which, so you only talk to any of them if you either already know them, or you really have to. Otherwise you keep your mouth shut, as they are not your friends. 

That’s what this taught us, so it was a dream that wasn't in the slightest bit wasted.

The Fastest Rabbit in Newcastle

This is a really crazy idea we have for a competition that will take us a bit of time to write up. So we’ll save it for now. Check back another day & it may be up here when we eventually get round to posting it.

We'll fill you in on all the hoppity juice real soon.

As bizarre as it may sound, this is an actual real thing. It's an idea we’ve sat on for years & it’s so mad, we may just do it one of these days.

Exactly who is the fastest rabbit in the Toon..?

Related Articles

History & Culture
History & Culture
History & Culture
History & Culture
History & Culture
History & Culture
History & Culture
History & Culture
This website uses cookies to ensure you get the best experience on our website.